Villa singola in vendita

San Benigno Canavese, Via canaletto - Vauda
€ 289.000
9 locali 9 locali
340 Mq 340 Mq
4 bagni 4 bagni

Villa singola in vendita

San Benigno Canavese, Via canaletto - Vauda

Descrizione annuncio

Questa elegante villa unifamiliare, rifinita in paramano sabbiato e circondata da un curato giardino, offre ampi spazi interni ed esterni pensati per garantire comfort e funzionalità.

L’ingresso si apre su un soggiorno di generose dimensioni, reso accogliente dalla presenza di un camino e arricchito da una porta finestra che conduce direttamente al portico, ideale per momenti di relax all’aperto. La cucina, ampia e abitabile, è anch’essa dotata di porta finestra con accesso diretto al grande terrazzo, perfetto per pranzi e cene in compagnia.

La zona notte è ben disimpegnata e comprende due camere matrimoniali: la prima dispone di condizionatore e balcone privato, mentre la seconda, attualmente adibita a salone, gode di una luminosa porta finestra. A completare il piano troviamo un bagno padronale con vasca e un bagno di servizio con doccia.

Una comoda scala interna conduce al piano mansardato, che ospita due locali di ampia metratura e un ulteriore bagno, offrendo così spazi versatili adatti a diverse esigenze.

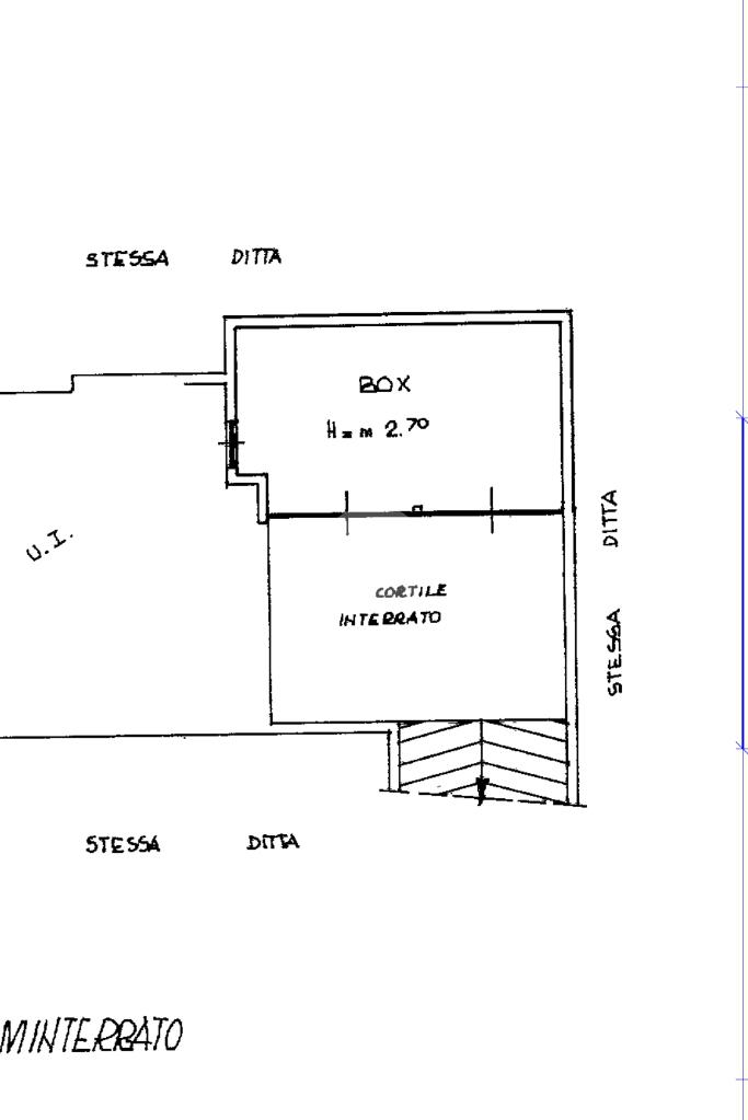
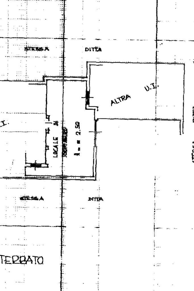
Il piano semi-interrato è particolarmente ricco di ambienti: oltre a bagno/lavanderia, disimpegno e cantina, troviamo una suggestiva tavernetta rifinita in legno con camino, un locale tecnico e due garage tripli di notevoli dimensioni.

All’esterno, la proprietà è impreziosita da un portico, un ampio terrazzo, un giardino con laghetto ornamentale e una comoda area di manovra che facilita l’accesso ai garage.

Mostra tutto

Nelle vicinanze

Trasporto pubblico Trasporto pubblico
Stazione di San Benigno
Stazione di San Benigno
1,6 Km
S. Benigno Canavese
S. Benigno Canavese
1,6 Km
San Benigno (stab. ICSA)
San Benigno (stab. ICSA)
340 m
San Benigno (v. Rivarolo/v. Carobia)
San Benigno (v. Rivarolo/v. Carobia)
570 m
Scuole Scuole
scuola materna Teresa Belloch
1,5 Km
Scuola dell'Infanzia "Acquerello"
2,8 Km
Scuola Primaria "Gigi Ghirotti"
2,8 Km
Farmacia Farmacia
Farmacia
1,3 Km
Farmacia Comunale 21
2,9 Km
Supermercati Supermercati
Conad
710 m
Negozi Negozi
pizza Planet
1,4 Km
Bar Bar
Bar
1,2 Km
Ristoranti Ristoranti
Il Mandorlo
1,5 Km
Mostra tutto

Caratteristiche

Rif.:
61121138
Piano:
Su più livelli di 1
Totale piani:
1
Box:
2
Posti auto:
1
Balconi:
1
Mostra tutto
Prezzo Prezzo
€ 289.000
Rata mutuo Rata mutuo
€ 1.364 / mese
Spese annue Spese annue
€ 0
Proponi il tuo prezzoProponi il tuo prezzo
Immobile valutato con T·Valuta

Classe Energetica

D
D
D
D
D
D
D
D
D
EP globale non rinnovabile:
106.86 kW h/m² anno
EP globale rinnovabile:
51.65 kW h/m² anno
EP invernale del fabbricato:
EP estiva del fabbricato:
Anno di costruzione:
1980
Riscaldamento:
Autonomo
Tipo impianto:
A radiatori
Tipo alimentazione:
GPL

Ti interessa visionare l'immobile?

Fissa un appuntamento  Fissa un appuntamento

Richiedi informazioni

Clicca su Leggi per aprire l'informativa
* Questi campi sono obbligatori

Calcola il tuo mutuo

Semplice e senza impegno
Anticipo

( % )
Mutuo

( % )

pochi semplici passi

inserisci i tuoi dati
Questionario completato
Grazie per aver richiesto un appuntamento senza impegno con un nostro Consulente del Credito e Assicurativo.

Hai inserito correttamente tutti i dati necessari e a breve riceverai una e-mail con un link da convalidare per inviare i tuoi dati.
Affiliato
Immobiliare Sanbe Sas
P.zza Vittorio Emanuele II, 5 10080 San Benigno Canavese (TO)

Il nostro staff


  • Dario Bergamo
    Affiliato

  • Diego Buscieti
    Affiliato

  • Gianluca Di Bartolo
    Collaboratore

  • Valeria Liperoti
    Coordinatrice

  • Alex Rutigliano
    Collaboratore

  • Valentina Severin
    Coordinatrice
P.zza Vittorio Emanuele II, 5 10080 San Benigno Canavese (TO)
Zona: SAN BENIGNO CANAVESE-BOSCONERO-LOMBARDORE-RIVAROSSA-MONTANARO
Mostra su mappa
Orari: Lun - Ven 08.30/12.30 - 14.30/20.00. Sabato 08.30/12.30 - 14.30/19.00
Affiliato
Immobiliare Sanbe Sas
P.zza Vittorio Emanuele II, 5 10080 San Benigno Canavese (TO)

2025 Tecnocasa Franchising S.p.A. - P. IVA 08365160152 - Via Monte Bianco 60/A 20089 Rozzano (MI). Ogni agenzia ha un proprio titolare ed è autonoma. Privacy policy | Policy utilizzo | Cookie policy