Villa singola in vendita

Rivarossa, Via Falcone e Borsellino - Paradiso
€ 279.000
9 locali 9 locali
210 Mq 210 Mq
3 bagni 3 bagni

Villa singola in vendita

Rivarossa, Via Falcone e Borsellino - Paradiso

Descrizione annuncio

A Rivarossa, all’interno di un elegante contesto residenziale caratterizzato da sole ville, proponiamo una villa unifamiliare rifinita in paramano che unisce spazi generosi e comfort moderni.

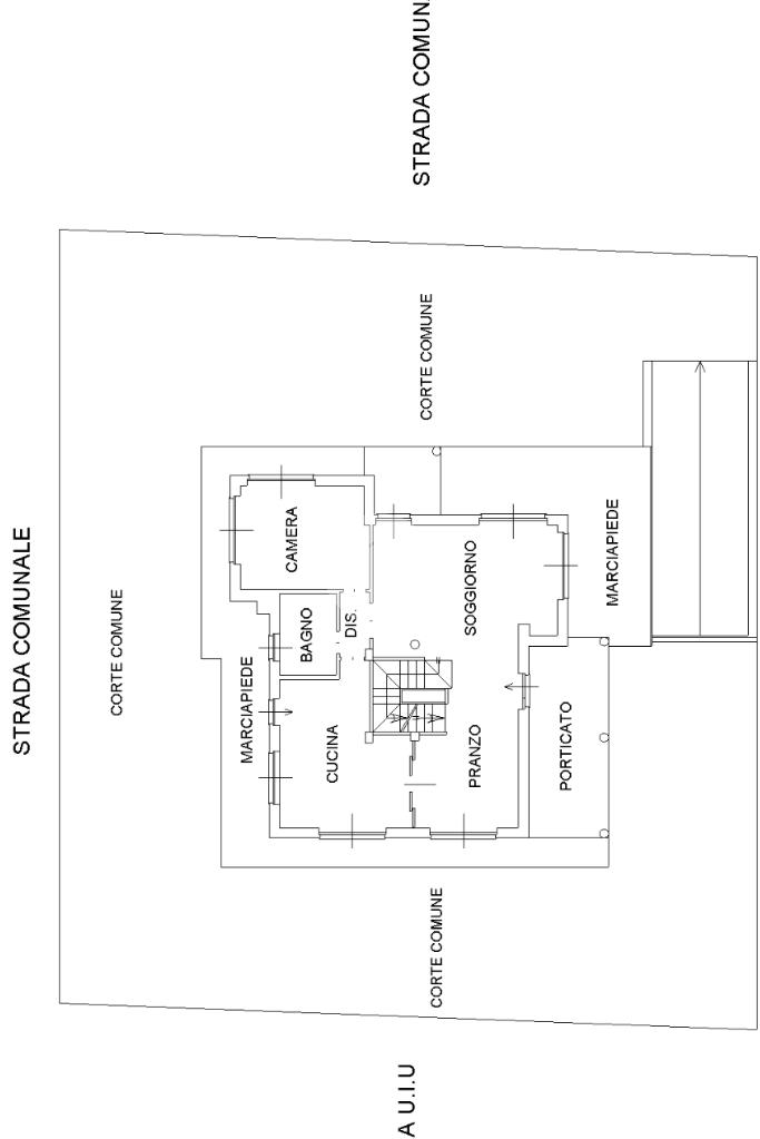
La proprietà è circondata da un giardino curato e dispone di un ampio terrazzo ideale per momenti di relax o convivialità. L’ingresso al piano terra si apre su un unico ambiente ampio e luminoso che accoglie un soggiorno doppio, una cucina abitabile con isola a vista e uno studio, il tutto valorizzato da una raffinata pavimentazione in parquet. Sempre su questo livello troviamo un bagno padronale dotato di doccia.

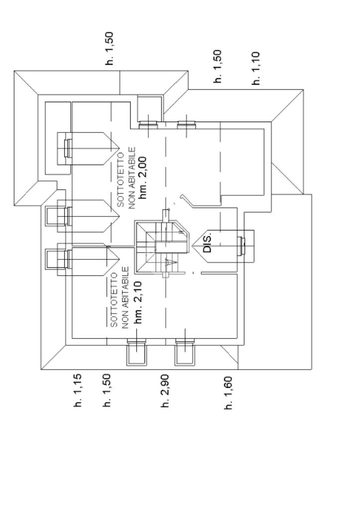
Attraverso una comoda scala interna si accede al piano sottotetto, dedicato alla zona notte, dove si trovano due camere da letto, di cui una con cabina armadio, e un secondo bagno.

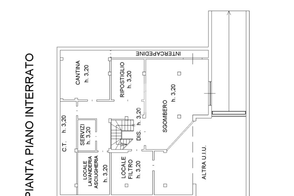
Il piano semi-interrato completa la proprietà con una spaziosa tavernetta perfetta per momenti conviviali, due camere da letto aggiuntive, un pratico ripostiglio, la cantina, la lavanderia, la centrale termica e un garage triplo.

Questa villa rappresenta la soluzione ideale per chi desidera vivere in un contesto signorile, tranquillo e riservato, senza rinunciare alla comodità di ampi spazi interni ed esterni.

Mostra tutto

Nelle vicinanze

Trasporto pubblico Trasporto pubblico
Rivarossa (fraz. Grangetto)
Rivarossa (fraz. Grangetto)
1,2 Km
Rivarossa (Deposito)
Rivarossa (Deposito)
1,3 Km
Scuole Scuole
Scuola Primaria Antonino Bertolotti
2,7 Km
Farmacia Farmacia
Farmacia Comunale 22
1,7 Km
Negozi Negozi
Negozi
2,2 Km
Mostra tutto

Caratteristiche

Rif.:
61118797
Piano:
1 di 1 (Piano su più livelli)
Box:
1
Posti auto:
1
Balconi:
1
Terrazzi:
1
Mostra tutto
Prezzo Prezzo
€ 279.000
Rata mutuo Rata mutuo
€ 1.282 / mese
Spese annue Spese annue
€ 0
Proponi il tuo prezzoProponi il tuo prezzo

Classe Energetica

E
E
E
E
E
E
E
E
E
EP globale non rinnovabile:
192.51 kW h/m² anno
EP globale rinnovabile:
2.12 kW h/m² anno
EP invernale del fabbricato:
EP estiva del fabbricato:
Anno di costruzione:
2007
Riscaldamento:
Autonomo
Tipo impianto:
A radiatori
Tipo alimentazione:
Metano

Ti interessa visionare l'immobile?

Fissa un appuntamento  Fissa un appuntamento

Richiedi informazioni

* Questi campi sono obbligatori

Calcola il tuo mutuo

Semplice e senza impegno
Anticipo

( % )
Mutuo

( % )

pochi semplici passi

inserisci i tuoi dati
Questionario completato
Grazie per aver richiesto un appuntamento senza impegno con un nostro Consulente del Credito e Assicurativo.

Hai inserito correttamente tutti i dati necessari e a breve riceverai una e-mail con un link da convalidare per inviare i tuoi dati.
Affiliato
Immobiliare Sanbe Sas
P.zza Vittorio Emanuele II, 5 10080 San Benigno Canavese (TO)

Il nostro staff


  • Dario Bergamo
    Affiliato
P.zza Vittorio Emanuele II, 5 10080 San Benigno Canavese (TO)
Zona: SAN BENIGNO CANAVESE-BOSCONERO-LOMBARDORE-RIVAROSSA-MONTANARO
Mostra su mappa
Orari: Lun - Ven 08.30/12.30 - 14.30/20.00. Sabato 08.30/12.30 - 14.30/19.00
Affiliato
Immobiliare Sanbe Sas
P.zza Vittorio Emanuele II, 5 10080 San Benigno Canavese (TO)

2025 Tecnocasa Franchising S.p.A. - P. IVA 08365160152 - Via Monte Bianco 60/A 20089 Rozzano (MI). Ogni agenzia ha un proprio titolare ed è autonoma. Privacy policy | Policy utilizzo | Cookie policy