Quadrilocale in vendita

Rivarossa, Via Neuscheller
€ 129.000
4 locali 4 locali
130 Mq 130 Mq
2 bagni 2 bagni

Quadrilocale in vendita

Rivarossa, Via Neuscheller

Descrizione annuncio

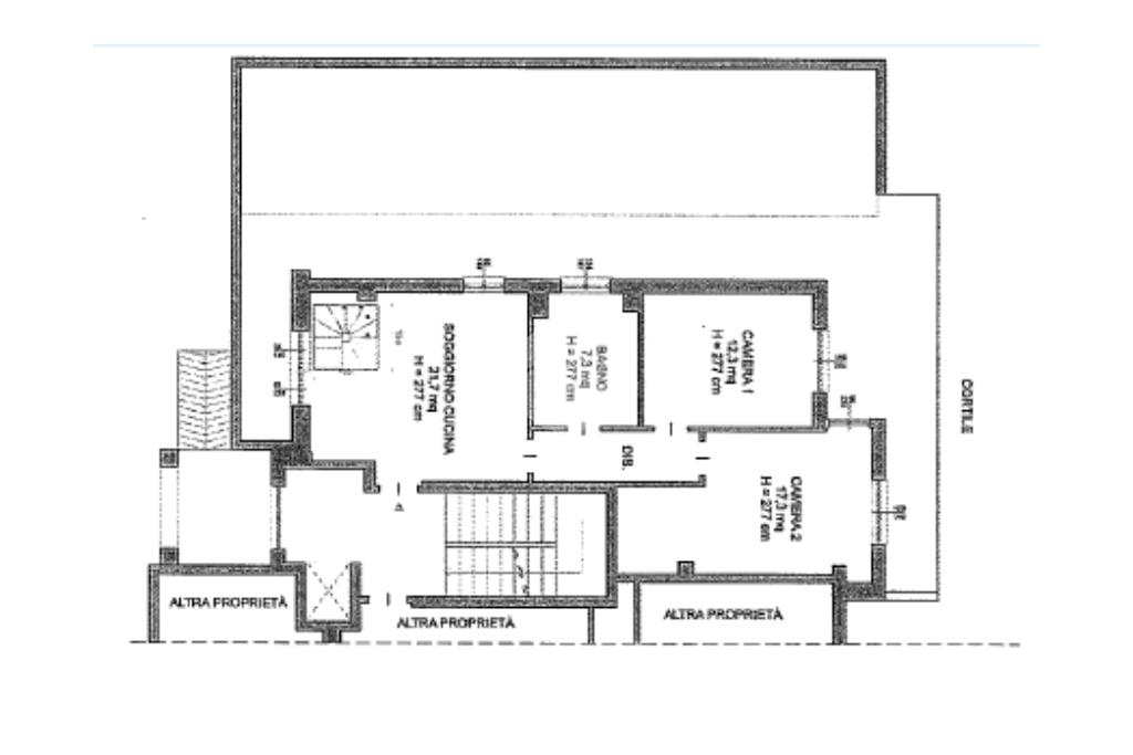
In una piccola e tranquilla palazzina proponiamo in vendita un appartamento completamente ristrutturato, ideale per chi cerca comfort, spazi esterni e indipendenza.

La soluzione si apre su un ampio ingresso living con parete cottura attrezzata e completamente piastrellata. La zona giorno, luminosa grazie alle due finestre e alla porta-finestra, permette di accedere direttamente al giardino privato, perfetto per momenti di relax e pranzi all’aperto.

La zona notte comprende due camere matrimoniali, una delle quali dotata di cabina armadio. Entrambe le camere offrono l’accesso diretto al terrazzo che offre una vista panoramica sulle montagne. Il bagno al piano, finestrato e ben rifinito, è dotato di vasca.

Attraverso una comoda scala interna si raggiunge il piano semi-interrato, dove troviamo una tavernetta completamente rifinita con parete attrezzata, ideale come seconda zona living, studio o area hobby. La tavernetta è raggiungibile anche dalla scala condominiale, rendendola uno spazio versatile e facilmente fruibile. Sullo stesso livello sono presenti un secondo bagno con doccia e un antibagno con attacco lavatrice.

Completa la proprietà un garage singolo di 18 mq.

Tra gli optional troviamo: doppio accesso, doppio portoncino blindato, zanzariere su tutte le aperture, infissi in legno con doppio vetro, giardino privato e basse spese di gestione condominiale.

Soluzione unica nel suo genere, libera da subito!

Mostra tutto

Nelle vicinanze

Trasporto pubblico Trasporto pubblico
Rivarossa (v. San Francesco)
Rivarossa (v. San Francesco)
70 m
Rivarossa
Rivarossa
260 m
Scuole Scuole
Scuola Primaria Antonino Bertolotti
1,7 Km
Farmacia Farmacia
Farmacia Comunale 22
170 m
Farmacia
2,3 Km
Negozi Negozi
Negozi
2,9 Km
Mostra tutto

Caratteristiche

Rif.:
61152830
Piano:
Terra di 2 con ascensore
Totale piani:
2
Box:
1
Posti auto:
1
Balconi:
1
Mostra tutto
Prezzo Prezzo
€ 129.000
Rata mutuo Rata mutuo
€ 609 / mese
Spese annue Spese annue
€ 600
Proponi il tuo prezzoProponi il tuo prezzo

Classe Energetica

F
F
F
F
F
F
F
F
F
EP globale non rinnovabile:
284.92 kW h/m² anno
EP globale rinnovabile:
0.66 kW h/m² anno
EP invernale del fabbricato:
EP estiva del fabbricato:
Anno di costruzione:
2004
Riscaldamento:
Autonomo
Tipo impianto:
A radiatori
Tipo alimentazione:
Metano

Ti interessa visionare l'immobile?

Fissa un appuntamento  Fissa un appuntamento

Richiedi informazioni

Clicca su Leggi per aprire l'informativa
* Questi campi sono obbligatori

Calcola il tuo mutuo

Semplice e senza impegno
Anticipo

( % )
Mutuo

( % )

pochi semplici passi

inserisci i tuoi dati
Questionario completato
Grazie per aver richiesto un appuntamento senza impegno con un nostro Consulente del Credito e Assicurativo.

Hai inserito correttamente tutti i dati necessari e a breve riceverai una e-mail con un link da convalidare per inviare i tuoi dati.
Affiliato
Immobiliare Sanbe Sas
P.zza Vittorio Emanuele II, 5 10080 San Benigno Canavese (TO)

Il nostro staff


  • Dario Bergamo
    Affiliato

  • Diego Buscieti
    Affiliato

  • Gianluca Di Bartolo
    Collaboratore

  • Valeria Liperoti
    Coordinatrice

  • Alex Rutigliano
    Collaboratore

  • Valentina Severin
    Coordinatrice
P.zza Vittorio Emanuele II, 5 10080 San Benigno Canavese (TO)
Zona: SAN BENIGNO CANAVESE-BOSCONERO-LOMBARDORE-RIVAROSSA-MONTANARO
Mostra su mappa
Orari: Lun - Ven 08.30/12.30 - 14.30/20.00. Sabato 08.30/12.30 - 14.30/19.00
Affiliato
Immobiliare Sanbe Sas
P.zza Vittorio Emanuele II, 5 10080 San Benigno Canavese (TO)

2025 Tecnocasa Franchising S.p.A. - P. IVA 08365160152 - Via Monte Bianco 60/A 20089 Rozzano (MI). Ogni agenzia ha un proprio titolare ed è autonoma. Privacy policy | Policy utilizzo | Cookie policy